Двухкомнатная квартира по пр.Ленина, 13а г.Ленинск-Кузнецкий

Кемеровская область — Кузбасс, Ленинск-Кузнецкий муниципальный округ, Ленинск-Кузнецкий, проспект Ленина, 13А
Район р-н Автовокзала
Тип сделки Продажа
Категория объекта Квартира
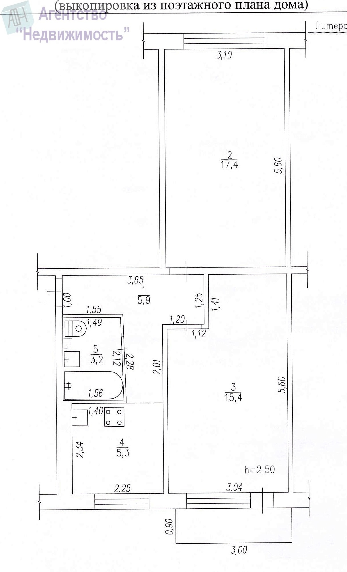
Общая площадь 47 м2
Жилая площадь 33 м2
Площадь кухни 5 м2
Число комнат 2
Этаж 2
Этажность 5
Балкон один застекленный балкон
Санузел совместный
Площадь комнат 17,4 м2, 15,4 м2
Ремонт Косметический
Тип дома панельный
Материал стен ж/б панели
Год постройки дома 1972
Тип окон пластиковые со стеклопакетами
 


Предлагаем к покупке двухкомнатную квартиру, расположенную на удобном втором этаже в панельном доме по пр. Ленина, дом № 13а.
Квартира с очень редкой для нашего города планировкой - раздельные комнаты на 2 стороны, балкон качественно застеклен. Квартира светлая, ухоженная с большей площадью для данной категории домов 48,1 кв.м, установлены пластиковые окна.
Дом располагается в районе где инфраструктура формировалась десятилетиями. Эта локация отличается обжитостью, озеленением и хорошей транспортной доступностью. В соседнем здании располагается "Монетка", в шаговой доступности аптеки, "Коняхинский рынок", автовокзал, магазины различного назначения и др.
В районе развита транспортная и социальная инфраструктура: автобусные, троллейбусные маршруты, которые позволят добраться в любой район города.
Один собственник. Чистая продажа. Ипотека — возможна. Обременений нет! Звоните и приходите на просмотр! Предлагайте удобную для вас схему оплаты!

Похожие предложения

Выгодные предложения - ловите момент!

Ваш персональный менеджер

Если у вас появились вопросы, напишите нам!